Łódź, Polesie

Hala do wynajęcia

500,00 m2 23,50 zł/m2

11 750 zł

oferta specjalna
Anna Matuszewska-Wrona

agent

Opis nieruchomości

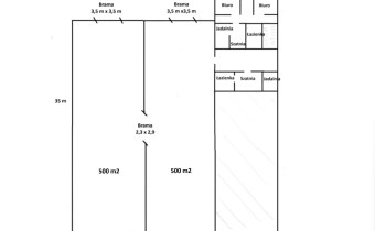
HALA MAGAZYNOWA 500 M2 LUB 1000 M2 Z PLACEM . Blisko trasy S14, szybki dojazd do drogi S8 i A2. Do wynajęcia powierzchnia magazynowo produkcyjna wraz placem do 3000 m2, usytuowana na parterze budynku magazynowo-produkcyjnego o powierzchni 500 m2. Możliwość wynajęcia 500 m2 lub 1000 m2 magazynu. Wysokość w najniższym miejscu 4,3 m, w najwyższym 6,1. Brama 3,5 m x 3,5 m. Świetliki w suficie doświetlają pomieszczenia w trakcie dnia. Lokal ogrzewany (gaz). Dodatkowo możliwość wynajmu pomieszczeń biurowych 120m2, zaplecze socjalne, łazienki. Teren nieruchomości ogrodzony i monitorowany, możliwy dojazd samochodami ciężarowymi oraz TIR. Plac utwardzony przy nieruchomości ok. 600 m2. Możliwość wynajęcia działki 3000 m2 o przeznaczeniu handlowo-usługowym z bezpośrednim wjazdem z ulicy asfaltowej. Działka jest widoczna z ulicy o dużym natężeniu ruchu, odpowiednia na działalność typu skład budowlany, wypożyczalnia sprzętu, samochodów itp.
MEDIA : energia elektryczna (moc 250 kW), gaz (250 kWh/h), woda i kanalizacja miejska. 
CZYNSZ: 23,50 zł / m2 + VAT do negocjacji + media
Oferta nie stanowi oferty określonej w art. 66 i następnych Kodeksu Cywilnego i może być w danym momencie nieaktualna. Prosimy o kontakt telefoniczny.
 

Nota prawna

Opis oferty zawarty na stronie internetowej sporządzany jest na podstawie oględzin nieruchomości oraz informacji uzyskanych od właściciela, może podlegać aktualizacji i nie stanowi oferty określonej w art. 66 i następnych K.C.

Szczegóły

Symbol oferty LOK-HW-4027
Powierzchnia 500,00 m²
Powierzchnia działki 500 m²
Przeznaczenie hali magazynowy, produkcyjny
Czynsz najmu netto /m2 24 PLN
Dojazd ASFALTOWA
Ogrzewanie C.O. lokalne
Położenie obrzeża miasta
Plac utwardzany tak

Podobne oferty

Hala do wynajęcia - Łódź, Górna, Chocianowice
hala do wynajęcia - Łódź, Górna, Chocianowice

LOK-HW-4063

Łódź, Górna, Chocianowice
hala do wynajęcia

570,00 m²

14 000
24,56 zł/m2
nowa oferta
Dodaj
do notatnika
Hala do wynajęcia - Łódź, Polesie, Brus
hala do wynajęcia - Łódź, Polesie, Brus

LOK-HW-4060

Łódź, Polesie, Brus
hala do wynajęcia

384,00 m²

9 216
24,00 zł/m2
nowa oferta
Dodaj
do notatnika
Hala do wynajęcia - Łódź, Górna
hala do wynajęcia - Łódź, Górna

LOK-HW-4033

Łódź, Górna
hala do wynajęcia

774,00 m²

15 000
20,00 zł/m2
nowa oferta
Dodaj
do notatnika
Hala do wynajęcia - Łódź, Widzew
hala do wynajęcia - Łódź, Widzew

LOK-HW-4025

Łódź, Widzew
hala do wynajęcia

325,00 m²

11 375
35,00 zł/m2
Dodaj
do notatnika

Napisz do nas

Proszę wypełnić to pole
Proszę wypełnić to pole
Proszę wypełnić to pole
Proszę wypełnić to pole
Trwa wysyłanie...

Ta strona wykorzystuje pliki cookies w celach statystycznych oraz w celu dostosowania naszych serwisów do indywidualnych potrzeb klientów. Zmiany ustawień dotyczących plików cookie można dokonać w dowolnej chwili modyfikując ustawienia przeglądarki. Korzystanie z tej strony bez zmian ustawień dotyczących cookies oznacza, że będą one zapisane w pamięci urządzenia.

rozumiem